.jpg)
2262 Yorkshire Drive, Decatur, IL
$90,000
Pending
3 Beds
1½ Baths
1,836 SqFt
0.19 Acres
2 Car Garage
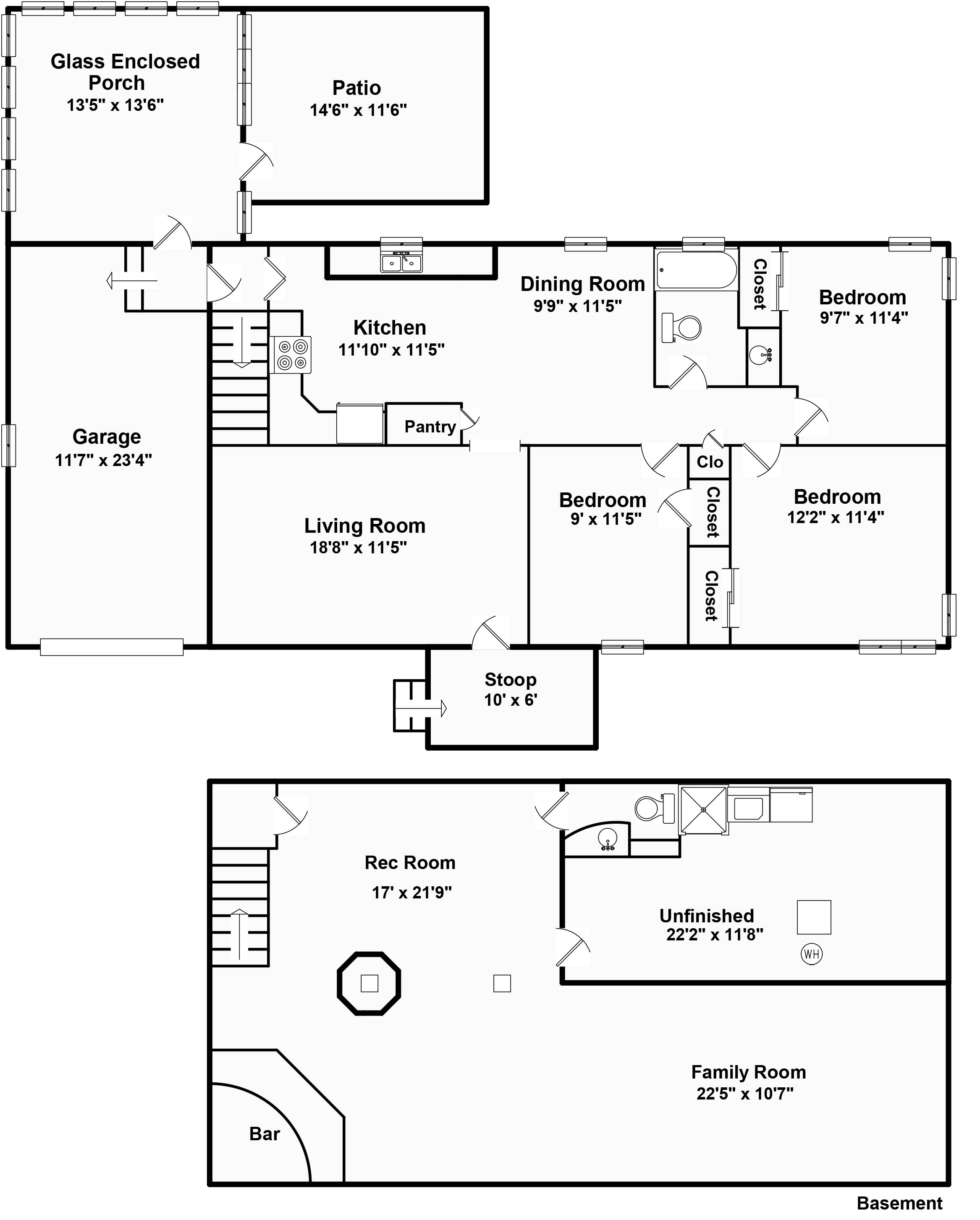
About 2262 Yorkshire Drive
Charming 3 bedroom, 1.5 bath ranch in Decatur’s popular Home Park neighborhood—perfect as a starter home, downsizing option, or investment property. Recently rented for $1,000/month, this home offers solid value and versatility. The main level features a comfortable layout with updated finishes, while the finished basement includes a wet bar and convenient half bath—ideal for entertaining or extra living space. Step outside to enjoy the fenced backyard, a sunroom off the garage overlooking it, and a storage shed for added convenience. Major updates since 2014 include: roof, flooring, air conditioner, stainless steel appliances, interior paint, toilets, ceiling fans, and blown-in insulation—making this home move-in ready and worry-free. Don’t miss this great opportunity in Home Park! No homestead exemption currently on file—next bill will reflect approximately $580 reduction in taxes.
Facts & Features
MLS® # | 6254594 |
---|---|
Price | $90,000 |
Cost Per Square Foot | $49 |
Bedrooms | 3 |
Bathrooms | 2.00 |
Full Baths | 1 |
Half Baths | 1 |
Total Finished Square Feet | 1,836 |
Total Finished Above Grade | 1,056 |
Main | 1,056 |
Basement Total | 1,056 |
Basement Finished | 780 |
Basement Unfinished | 276 |
Acres | 0.19 |
Year Built | 1956 |
Type | Single Family |
Sub-Type | Single Family Residence |
Style | Ranch |
Status | Pending |
Taxes | $2,773 |
Tax Year | 2024 |
Community Information
Address | 2262 Yorkshire Drive |
---|---|
Subdivision | Home Park 1st Add |
City | Decatur |
County | Macon |
State | IL |
Zip Code | 62526 |
Amenities
Parking | Attached, Garage |
---|---|
# of Garage Spaces | 2 |
Is Waterfront | No |
Has Pool | No |
Interior
Appliances | Dishwasher, Disposal, Gas Water Heater, Microwave, Oven, Range, Refrigerator |
---|---|
Heating | Hot Water |
Cooling | Central Air, Whole House Fan |
Has Basement | Yes |
Basement | Finished, Full, Unfinished |
Fireplace | No |
# of Stories | 1 |
Stories | One |
Exterior
Exterior Features | Fence, Shed |
---|---|
Lot Dimensions | irregular |
Roof | Asphalt, Shingle |
Construction | Vinyl Siding |
Foundation | Basement |
School Information
District | Decatur Dist 61 |
---|
Additional Information
Date Listed | August 20th, 2025 |
---|---|
Days on Market | 59 |
Zoning | RES |
Listing Details
Agent | Tony Piraino |
---|---|
Office | Brinkoetter REALTORS® |